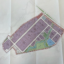
İpsala OSB’nin İmar Planları Sanayi ve Teknoloji Bakanlığı tarafından onaylanmıştır. Böylece resmi tüm süreçlerimiz tamamlanmıştır
09 October 2023, Monday
967
İpsala OSB'miz için hızlı ilerliyoruz. Yakın zamanda İpsala’ya yatırım yapacak firmalarımızla sözleşme yapmayı planlıyoruz.
İlçemize hayırlı olmasını diliyoruz.



